Great news! Planning permission approved for contemporary design Lincolnshire conservation area
- Barbara from ADSDF

- Aug 23, 2020
- 1 min read
We are thrilled and excited for this lovely contemporary extension to an existing Victorian house in a conservation are in Lincolnshire has been approved planning permission.
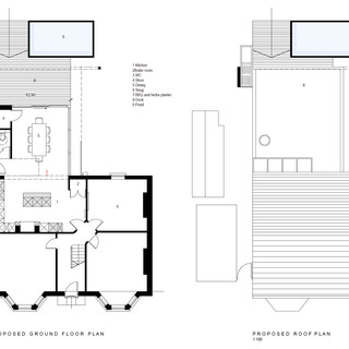
The proposal extends the kitchen in the garden with a glazed dining room. It also includes a store and a downstairs toilet.
The glazing and roof lights brings light into the existing kitchen and creates panoramic views of the garden.
The material selection provide a contemporary feel and compliment the existing traditional brick.
For more help with extending your home please contact us At
For helpful guidance extending your home please visit our step by step guide here.




















Where is the customer service number of www.cleaningcairns.com.au technical support team? Only the link is mentioned on this blog. Why don’t complete information about phone number and all other information is not shared on this blog?